【黃石】玉龍灣
更新時間:2019-03-26
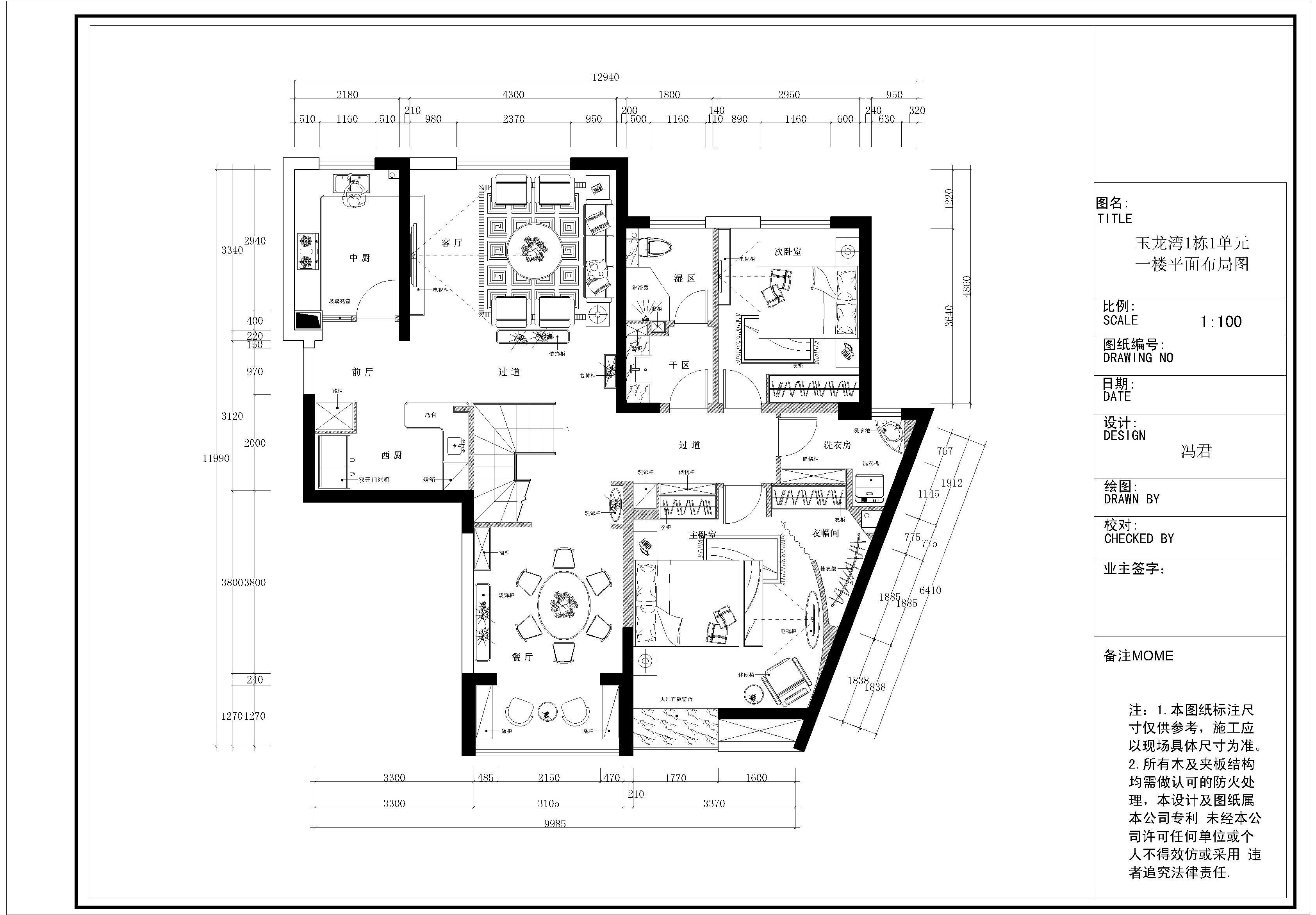
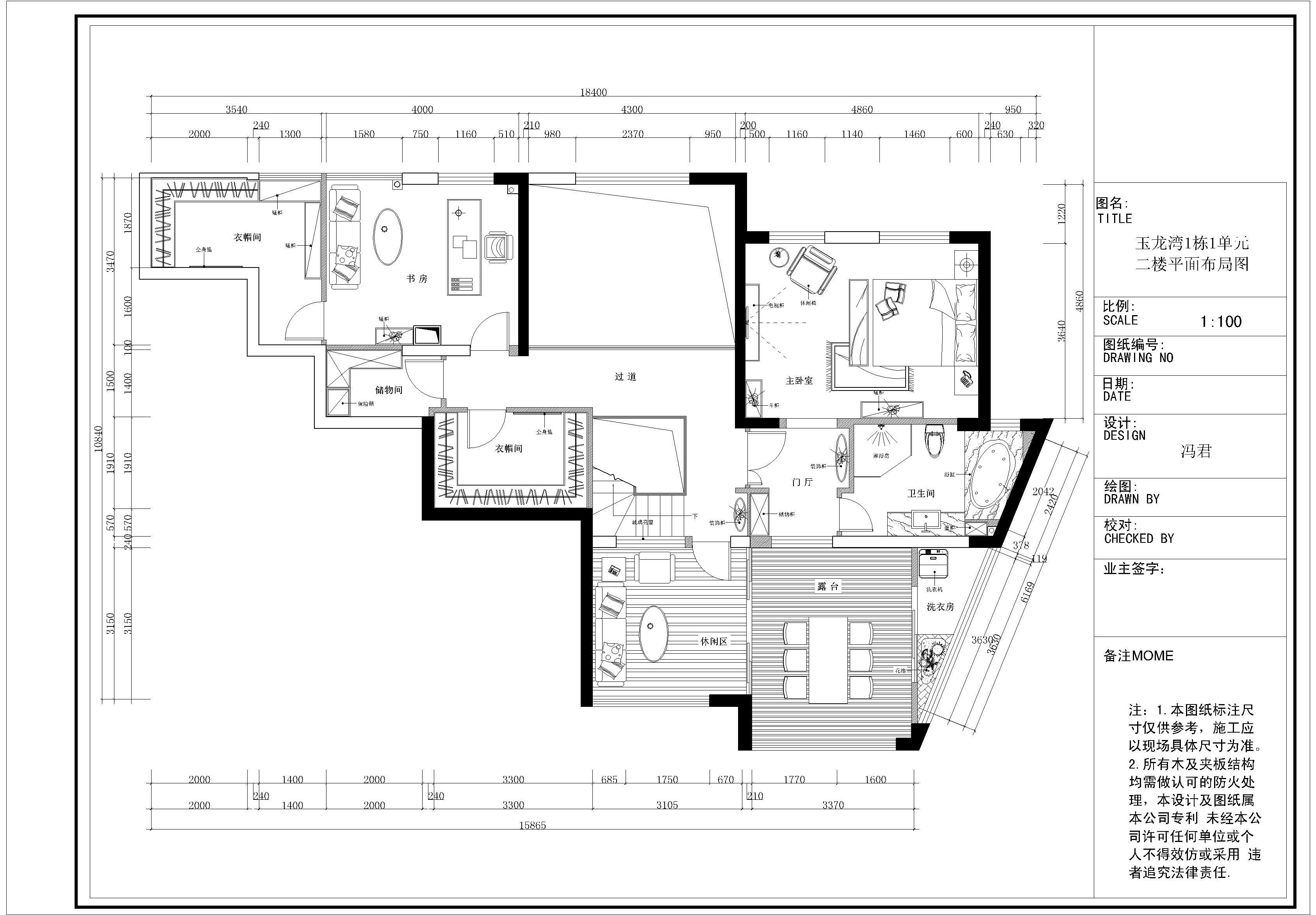
| 設計風格 | 新東方演繹 | 戶型案例 | 復式 | 案例面積 | 265 |
|---|---|---|---|---|---|
| 樓盤名稱 | 玉龍灣 | 所在城市 | 黃石市 | 案例造價 | 半包33萬 |
| 設計師 | 馮君 | ||||

案例說明:
本案例采用現代中式風格裝修,在簡潔的現代裝飾風格的復式中,混搭上新中式流派,為家營造出一點不一樣的氣質。沒有典型的老沉之感,這種新風格的家裝對傳統的中式風格進行了全新的演繹,融合現代元素,展現出傳統但并不古板的整體印象。家在任何時候都應該被當作一處風景來對待,不僅要有暖人的氣氛,還要有賞心悅目的環境。方能在居家的溫馨之余,體味看風景的心情。無論何時回到家,總能領略到生活的風情萬種。
同風格案例:更多>>
同面積案例:













京公網安備 11010802032436號